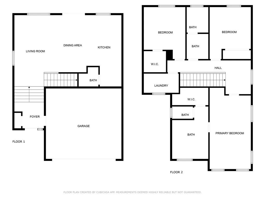
Stylish Modern Home Built in 2018 - Move-In Ready This beautifully designed 3-bedroom, 2.5-bath single-family residence (not a detached condo) offers 1,872 sq. ft. of comfortable, contemporary living. Completed in 2019, this two-story home blends sleek modern design, an open-concept layout, and high-quality finishes throughout. Step inside through the extra-wide entry foyer with a coat closet. Be greeted by high ceilings and the easy-care elegance of durable Luxury Vinyl Plank flooring with upgraded flat baseboards throughout. The spacious living/great room flows seamlessly into a gourmet kitchen with an island, white cabinetry, granite counters, stainless steel appliances (range, microwave hood, dishwasher), recessed lighting, and a window over the stainless steel sink overlooking the private, paved patio - perfect for outdoor entertaining. A convenient downstairs powder room accommodates guests with ease. An elegant staircase with white risers leads to the upper level, adding a touch of brightness and contrast. The south-facing primary suite is filled with natural light and features a ceiling fan, built-in cabinet nook, walk-in closet, and a spacious bathroom with dual sinks and a glass-enclosed shower with a built-in tile seat. Two additional bedrooms include one with a walk-in closet and one with mirrored closet doors, both with ceiling lights. The hallway bathroom offers dual sinks and a glass-enclosed tub. An upstairs laundry room with built-in overhead cabinets adds everyday convenience. The attached garage with direct access features high ceilings. This home is also one of only three in the community with its own private driveway for additional parking. Additional highlights include air conditioning, a tankless water heater for endless hot water, and an internal fire sprinkler system for added peace of mind. Enjoy easy access to the 110 & 405 freeways, a nearby park, refreshing South Bay breezes, and close proximity to beaches, shopping, and dining.
SB25183238
Residential - Single Family, 2 Story
3
2 Full/1 Half
2018
Los Angeles
0.0575
Acres
Public Water
2
Public Sewer
Loading...
The scores below measure the walkability of the address, access to public transit of the area and the convenience of using a bike on a scale of 1-100
Walk Score
Transit Score
Bike Score
Loading...
Loading...
