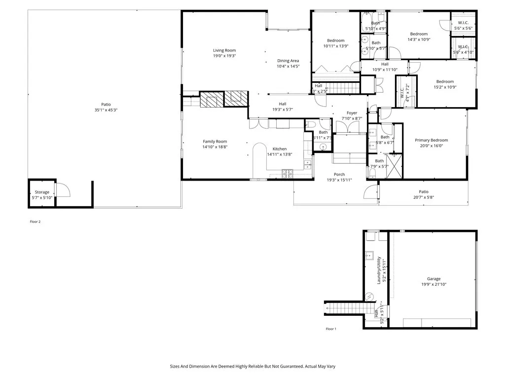
Spacious home with exceptional indoor-outdoor living! This beautifully maintained, ~2600 square foot residence offers an ideal blend of comfort and functionality throughout. The main level features an open concept kitchen with plenty of cabinet space, a large peninsula, five burner Thermador stove, double oven, and a dishwasher. The kitchen opens directly to the inviting living room which presents high ceilings, skylights, a fireplace, and a wet bar with a mini-fridge. Across the hallway from the kitchen, the large dining area connects directly to the family room which also features a fireplace, high ceilings, and built-in storage. The living and the family rooms both provide direct access to the sizeable and private backyard - an entertainer's dream showcasing a built-in outdoor grill with a dedicated gas line and peninsula, a garden shed, hot tub, fountain, California native plants, and mature fruit trees (two lime, one lemon, and one tangerine). The dining area also opens to its own serene garden space on the west side of the home. Back inside, all bedrooms are situated on the main floor of the home. The large primary suite includes a balcony, two closets (including a walk-in closet), and an en-suite bathroom with dual vanities and a shower. The second and third bedrooms are generously sized and each have walk-in closets, while the fourth bedroom can similarly serve as a great bedroom/office. A full bathroom with dual vanities, a shower, and a tub is conveniently positioned between the other three bedrooms. Moreover, a convenient half bathroom sits just off the entry, perfect for guests. Downstairs features an oversized laundry room with access to an immense storage area under the home as well as a two-car garage with built-in storage. Additional highlights include central heat, recessed lighting, built-in cabinetry, and abundant storage throughout. Combining open spaces, an ideal layout, and lush outdoor amenities, this home offers versatile living in a peaceful and private setting.
SB25251301
Residential - Single Family, 1 Story
4
2 Full/1 Half
1967
Los Angeles
0.1724
Acres
Public Water
1
Public Sewer
Loading...
The scores below measure the walkability of the address, access to public transit of the area and the convenience of using a bike on a scale of 1-100
Walk Score
Transit Score
Bike Score
Loading...
Loading...
